
Friday, 27 March 2009
Sunday, 8 March 2009
Social critique towards a solution
A while back Ronnie asked me to read the book the fall of public man by Richard Sennett. He [Richard Sennett] is putting forward a cultural analysis which can be synonymous with Soho at the moment because of the proposed development framework plan. That is - when cultural values change, societies have to find new laws and codes of regulating itself in the way of public interaction to avoid chaos. This brings meaning to public life. The very essence of Soho is about public life. Everyone assumes roles and it is about the flaneur. Promenading. To see and be seen. Now Soho is in transition, the Bohemian society must find a new expression of public life to survive this change and not be lost forever. So that the Demise of the Artisan is avoided. Am I getting warmer? OK. My building programme seeks to do this.
2nd vignette

i'd never done this before. It's not something that any of us did while at DMU.
Have to admit I had to research what it actually was.
Would like to reattempt another time over a sketch up image.
1 more and then I am trying to finish this structure and get on with an axo.
Talked to the model maker!
He is really nice! It was all abit out of my depth ... but! At least I've had practice now in 'commissioning a model' lol.
Once he realised I wasn't supported that way wise - he talked me through it and he's asked me some questions and he's come up with an idea of how to achieve it.
Back to the drawing board. gotta produce
Vignette 1

If you're saying it could be better.
You would be right
But 2 more on their way
and then back to tube frame structure
plans,sections,elevations.
How does anyone else feel about Kalwall system? Is there another way to achieve transluncey?..........
I'm thinking rice papers like what Shigeru Ban uses.
Am trying my best to focus and channell the 'energy'
We're all in studio. It's ledgend already I did not go home last night. It begins!
Saturday, 7 March 2009
Friday, 6 March 2009
this one not built yet but was designed with Buro Happold


EVOLUTIONARY EXOSKELETON The structure of the Tower is based on a steel exoskeleton rather than a traditional structural core model. Three main structural spines weave along the facades, varying in terms of depth, width, and rotation in response to vertical and lateral forces as well as geometrical rules set by the design team. Similar to the inside of a turtle’s shell, these spines are merged together to form a hybrid of monocoque and frame-and-skin construction types. The structural morphology becomes that of smooth gradients between surface, surface relief, and strand which is a continuing interest of EMERGENT.
US Patent
Title:
Triangular composite exoskeleton structure
Document Type and Number:
United States Patent 5170598
Abstract:
An exoskeleton structure made up of a plurality of pairs of triangular units which are adjacent to each other and which are interconnected. Each triangular unit has a generally horizontal segment and a pair of upright diagonal segments connected to the respective ends of the respective horizontal segment. The segments of each structural unit are shell-like or transversely curved so that, when they mate with the segments of adjacent triangular units, the segments of the two units form frame elements having hollow interior spaces for receiving concrete which is directed into the hollow spaces after the structural units have been erected. The configuration of adjacent structural units is repeated throughout the entire extent of the structure so that the numerous triangular structural units form an exoskeleton structure having maximum strength and high resistance to lateral forces.
Triangular composite exoskeleton structure
Document Type and Number:
United States Patent 5170598
Abstract:
An exoskeleton structure made up of a plurality of pairs of triangular units which are adjacent to each other and which are interconnected. Each triangular unit has a generally horizontal segment and a pair of upright diagonal segments connected to the respective ends of the respective horizontal segment. The segments of each structural unit are shell-like or transversely curved so that, when they mate with the segments of adjacent triangular units, the segments of the two units form frame elements having hollow interior spaces for receiving concrete which is directed into the hollow spaces after the structural units have been erected. The configuration of adjacent structural units is repeated throughout the entire extent of the structure so that the numerous triangular structural units form an exoskeleton structure having maximum strength and high resistance to lateral forces.
From the official website of the Beijing Olympic Committee
External steel structure of Bird's Nest completed in one yearUpdated:2008-06-28
(BEIJING, June 28) -- Chairman of the Board for both the Beijing State-Owned Assets Management Co., Ltd. and the National Stadium Co., Ltd., Li Aiqing, announced the completion of the National Stadium's interwoven steel roof which broke ground in September 2005.
According to the official statement, engineering and installation of the crisscrossed steel roof is the most important and technically challenging portion of the construction project. A framework of 24 supporting piers forms the outer layer of the nest. The scale of the steel skeleton is most notable, weighing a total of 42,000 tons and spanning east to west 298 meters and north to south 333 meters. The completed building is 69 meters at its highest point and 40 meters at the lowest. The engineering and construction of this highly complex structure drew upon the highest level of domestic and international expertise.
In his statement, Li Aiqing explained that all work on the facility's support structure, roofing, and primary installations had reached completion. He further promised that finishing touches to the stadium were well underway and would be finalized as planned before the 2008 Olympics.
Completion of the steel skeleton represents a major milestone in the stadium project. The last stage of construction was reached this morning with the final dismantling of temporary support towers. The 78 steel support columns, weighing over 1.4 tons, were erected to stabilize the steel exoskeleton during construction. The process of disconnecting and dismantling the temporary supports occurred in several stages and involved lifting and setting the structure with a computer controlled hydraulic system. The successfully disconnection of the steel structure from its temporary supports was a proud moment for the engineering and construction teams; seeing the bird's nest stand on its own "feet" was a culmination of years hard work and planning.
(BEIJING, June 28) -- Chairman of the Board for both the Beijing State-Owned Assets Management Co., Ltd. and the National Stadium Co., Ltd., Li Aiqing, announced the completion of the National Stadium's interwoven steel roof which broke ground in September 2005.
According to the official statement, engineering and installation of the crisscrossed steel roof is the most important and technically challenging portion of the construction project. A framework of 24 supporting piers forms the outer layer of the nest. The scale of the steel skeleton is most notable, weighing a total of 42,000 tons and spanning east to west 298 meters and north to south 333 meters. The completed building is 69 meters at its highest point and 40 meters at the lowest. The engineering and construction of this highly complex structure drew upon the highest level of domestic and international expertise.
In his statement, Li Aiqing explained that all work on the facility's support structure, roofing, and primary installations had reached completion. He further promised that finishing touches to the stadium were well underway and would be finalized as planned before the 2008 Olympics.
Completion of the steel skeleton represents a major milestone in the stadium project. The last stage of construction was reached this morning with the final dismantling of temporary support towers. The 78 steel support columns, weighing over 1.4 tons, were erected to stabilize the steel exoskeleton during construction. The process of disconnecting and dismantling the temporary supports occurred in several stages and involved lifting and setting the structure with a computer controlled hydraulic system. The successfully disconnection of the steel structure from its temporary supports was a proud moment for the engineering and construction teams; seeing the bird's nest stand on its own "feet" was a culmination of years hard work and planning.
Bird's nest is a steel exoskeleton

Arching above and around the main structure is a stunning lattice of interwoven box-section steel columns, recalling the crackle glaze on a Chinese ceramic vase. This exoskeleton encloses and protects the stadium while admitting air and light. Workers clipped onto harnesses crawl over the superstructure like ants.
The stadium is a spectacular contrast to the banal office blocks and utilitarian apartments around it. Designed by Swiss architect Herzog & de Meuron, British engineer Arup Sport and their local partner China Architecture Design & Research Group, it is an iconic development intended to demonstrate China’s cultural and economic progress to the watching billions in 2008.
The project has been dubbed “the bird’s nest” by the public and such symbolism is important in China. A bird’s nest is a harmonious natural object and a dish eaten on special occasions.
“It’s clear they were looking for something architecturally dramatic. The overall excitement of the building will be amazing,” says J Parrish, architectural director of Arup Sport. “Without doubt, the Chinese will put on an amazing show.”
The stadium is a spectacular contrast to the banal office blocks and utilitarian apartments around it. Designed by Swiss architect Herzog & de Meuron, British engineer Arup Sport and their local partner China Architecture Design & Research Group, it is an iconic development intended to demonstrate China’s cultural and economic progress to the watching billions in 2008.
The project has been dubbed “the bird’s nest” by the public and such symbolism is important in China. A bird’s nest is a harmonious natural object and a dish eaten on special occasions.
“It’s clear they were looking for something architecturally dramatic. The overall excitement of the building will be amazing,” says J Parrish, architectural director of Arup Sport. “Without doubt, the Chinese will put on an amazing show.”
Some of the stadium’s statistics are similarly awe-inspiring. The structure is 320m long, nearly 300m wide and 69m tall. It boasts unwrapped steel weighing a total of 42,500 tonnes. There will be seating for 91,000 spectators. Yet the total cost is just 3bn yuan (£198m), a quarter of the price of London’s Wembley stadium, which has a similar capacity.
Another construction headache is that the stadium stands in a seismic zone and has to be able to withstand an earthquake. “The stadium and facilities have been divided into six or eight sections and the steel exoskeleton is independent of the structure inside, so that they can all move separately,” says Parrish.
Thursday, 5 March 2009
Tuesday, 3 March 2009
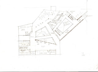
Cladding plan
The beauty of CAD is that you can layer so much stuff onto the same drawing and turn on and off layers and make up for lost time. This is what I am banking on.This is the beginning of a cladding panel to see how much of the sculptural form of GD would be loss when structure is offset ......................................................
My dad always told me that the best plans are so simplified that they become an architectural graphic.
Also pure coincidence the drawing uploaded this way and it certainly was not my intention at the time -but [perhaps even if this is not the best time to mention this ..... can you just see the 'logo' GD in that plan to the left?! :)
If this were a real building -what a scoop! Can you just see the promotional broucheres? :)
Well anything to keep my spirits up!
It's 4am. Am knocking off now to start at 9 tomorrow.
Floor plan study
Monday, 2 March 2009
Sunday, 1 March 2009
Subscribe to:
Comments (Atom)




















